Конструкция
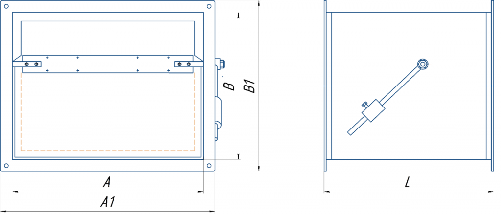
Клапан состоит из корпуса и лопатки, установленной в нем на осях. С одной стороны, к оси лопатки прикреплен цилиндрический противовес, позволяющий удерживать лопатку в закрытом положении при неработающем вентиляторе и обеспечивающий ее плавное открытие при начале движения воздушного потока (при включении вентилятора). Корпус и лопатки обратный клапанов КОП общего назначения изготавливаются из оцинкованной стали в пределах размеров сечения 1000х1000мм и выполнены на шинореечном соединении, клапаны большего сечения изготавливаются из углеродистой стали - многостворчатыми КОП-мс. присоединительные патрубки выполнены в виде фланцевого соединения.
Пример обозначения : КОП 150х150-ч/с фл.
КОП – клапан обратный прямоугольный
150х150 - типоразмер клапана по прям. сечению, мм
ч/с – сварной клапан из углеродистой стали на фланцах (оц.-
оцинкованная сталь)

Размеры АхВ (до 1000х1000мм для КОП из оц.стали) – соответствуют основным присоединительным размерам трубопроводов прямоугольного сечения и *по желанию заказчика могут быть изготовлены нестандартных размеров!
*КОП в исполнении из оцинкованной стали длина L=200мм - для всех типоразмеров!
* Размер А1=А+60мм, В1=В+60мм (фл.30 для КОП из оц.стали)
Габаритные присоединительные размеры КОП из углеродистой стали (мм)
КОП-мс

* Размер А1=А+50мм, В1=В+50мм (фл.25 для КОП из уг.стали)
|
Обозначение |
LхH |
С, мм |
|
|
Исполнение 1 |
Исполнение 2 |
||
|
КОП 150х150 |
150х150 |
50 |
160 |
|
КОП 200х200 |
200х200 |
||
|
КОП 250х250 |
250х250 |
||
|
КОП 400х400 |
400х400 |
170 |
|
|
КОП 500х500 |
500х500 |
||
|
КОП 800х800 |
800х800 |
64 |
200 |
|
КОП 1000х1000 |
1000х1000 |
||
Размеры АхВ – соответствуют основным присоединительным размерам воздуховодов прямоугольного сечения и *по желанию заказчика могут быть изготовлены нестандартных размеров!
Для покупки выбранного товара в Ростове-на-Дону достаточно оформить заказ одним из предложенных способов:
- Выбрать понравившийся товар и нажать кнопку «Заказать». При оформлении заказа заполнить форму. Вписать информацию в поля: ФИО, телефон и e-mail. Затем вам перезвонит менеджер, чтобы подтвердить ваше согласие на совершение покупки.
- Выбрать понравившийся товар и нажать кнопку «В корзину». Затем перейти в корзину и нажать «Оформить заказ». Далее заполнить форму с контактными данными и отправить заявку. С вами свяжется менеджер для дальнейшего обсуждения.
Оплата
Мы работаем с физическими и юридическими лицами. И предоставляем сразу два варианта оплаты.
- Наличные. Вы подписываете товаросопроводительные документы, расплачиваетесь денежными средствами, получаете товар и чек.
- Безналичный расчет. Принимаем карты Visa и MasterCard. Доступен при курьерской доставке.
Доставка в Пятигорске
Можем доставить ваш заказ собственными ресурсами. Либо через варианты доставки:
- Доставка транспортной компанией. Специалист предложит выбрать удобное время доставки и уточнит адрес.
- Самовывоз со склада. Для получения заказа обратитесь к сотруднику в зоне выдачи и назовите номер.
